অ্যাপ সূত্র আবদ্ধ
উপাদান মাঝারি শব্দ ℃ উপাদান মাঝারি শব্দ ℃
পিভিসি-সি -20℃~95℃ পিভিসি-ইউ -5℃~ 45℃
এফআরপিপি -20℃~120℃ পিপিএইচ -20℃~110℃
পিভিডিএফ 40℃~150℃

পণ্য স্থানগত বৈশিষ্ট্য

1. উচ্চতর রাসায়নিক প্রতিরোধ: বিস্তৃত অপারেটিং পরিসীমা -20°C থেকে 95°C, মাঝারিতে ভারী আয়ন সামগ্রী দ্বারা বিশুদ্ধ জলের মান পূরণ করে এবং স্বাস্থ্যকর বৈশিষ্ট্যগুলি জাতীয় স্বাস্থ্যের মান পূরণ করে৷
2. শক্তিশালী শক্তি, বলিষ্ঠতা, এবং রাসায়নিক জারা প্রতিরোধের।
3. স্থিতিস্থাপক: উন্নত বার্ধক্য এবং UV প্রতিরোধের ব্যাপকভাবে অন্যান্য পাইপিং সিস্টেম পরিষেবা জীবন প্রসারিত।
4. নিম্ন তাপ পরিবাহিতা: ইস্পাতের প্রায় 1/200; স্ব-নির্বাপক শিখা প্রতিবন্ধকতা।
5. লাইটওয়েট: লাইটওয়েট, স্টিলের পাইপের 1/5 এবং কপার পাইল 1/6।
6. কম প্রতিরোধের, উচ্চতর হার: মসৃণ, পরিষ্কার পাইপ, তরল মুসলিম করার সময় ঘর্ষণ এবং আনুগত্য কম করা।
7. সহজ ইনস্টলেশন, কম খরচ: আঠালো এবং থ্রেড সংযোগ উপলব্ধ, আঠালো হচ্ছে সবচেয়ে সুবিধাজনক।

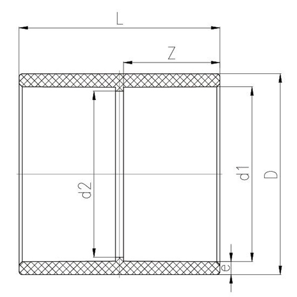
অঙ্কন

ডিএন ডি d1 d2 এল জেড e
15 27 20 18 35 16 3.5
20 32 25 23 40 18.5 3.5
25 40 32 30 47 22 4
32 50 40 38 55 26 5
40 61 50 47 65 31 5.5
50 75 63 60 80 37.5 t6
65 88 75 72 92 44 6.5
80 104 90 86 107 51 7
100 127 110 105 127 61 8.5
125 161 140 134 158 76 10.5
150 184 160 154 180 86 12
200 249 225 219 247 118.5 12
250 309 280 272 303 146 14.5
300 346 315 306 338 163. 5 15.5
350 392 355 349 380 184 18.5
400 440 400 393 430 206 20
450 494 450 430 477 231 22
500 548 500 480 527 256 24
600 692 630 600 657 321 31
700 758 710 690 737 361 22.5
800 843 800 780 830 406 20

বার্তা প্রতিক্রিয়া
আমাদের সম্পর্কে
Kaixin Pipeline Technologies Co., Ltd.
1999 সালে প্রতিষ্ঠিত, Kaixin Pipeline Technologies Co., Ltd. R&D, উত্পাদন, বিক্রয় এবং পরিষেবাকে একীভূত করে একটি উচ্চ-প্রযুক্তি সংস্থা। কোম্পানিটি ন্যাশনাল হাই-টেক এন্টারপ্রাইজ, "লিটল জায়ান্ট" বিশেষায়িত এবং অত্যাধুনিক এসএমই, জাতীয় একক পণ্য চ্যাম্পিয়ন (চাষ), প্রাদেশিক প্রযুক্তি-ভিত্তিক এসএমই, নিংবো বিশেষায়িত এবং অত্যাধুনিক এসএমই, নিংবো সিঙ্গল প্রোডাক্ট চ্যাম্পিয়ন (চাষ), নিংবেল ডিস্ট্রিক্ট, পিআইএন্ড টেকনোলজি, পিআইএন্ড ডিস্ট্রিক্ট এবং পলি সেন্টার সহ একাধিক মর্যাদাপূর্ণ সার্টিফিকেশন ধারণ করে। ফ্যাক্টরি, নিংবো ফোর-স্টার ম্যানেজমেন্ট ইনোভেশন এন্টারপ্রাইজ, এবং এন্টারপ্রাইজ ডেটা ম্যানেজমেন্ট ক্যাপাবিলিটি ম্যাচিউরিটি লেভেল 2।
আমরা প্লাস্টিকের ভালভ, পাইপ, পাইপ ফিটিং এবং জারা-প্রতিরোধী পাম্প সহ রাসায়নিক অ্যাপ্লিকেশনগুলির জন্য অ ধাতব জারা-প্রতিরোধী পণ্যগুলি বিকাশ, উত্পাদন এবং সরবরাহে বিশেষজ্ঞ। আমাদের পণ্যের পোর্টফোলিও পিভিসি-সি, পিভিসি-ইউ, পিভিডিএফ, পিপিএইচ এবং এফআরপিপি-এর মতো উপকরণগুলিকে বিস্তৃত করে, যার একটি বিস্তৃত পরিসর এবং বৈশিষ্ট্য রয়েছে। উল্লেখযোগ্যভাবে, আমাদের প্রজাপতি ভালভ ব্যাস DN1000 এ পৌঁছাতে পারে, যখন পাইপ এবং ফিটিংস DN800 পর্যন্ত প্রসারিত হয়, বাজারের ব্যবধান পূরণ করে এবং শিল্পে আমাদের প্রতিযোগিতামূলক প্রান্ত বজায় রাখে।
"প্রযুক্তি-চালিত, সময়ের সাথে তাল মিলিয়ে চলা" নীতির দ্বারা পরিচালিত কাইক্সিন R&D-এর জন্য বার্ষিক প্রায় RMB 10 মিলিয়ন বরাদ্দ করে৷ আমরা মানসম্মত স্বয়ংক্রিয় উত্পাদন এবং আমদানি করা কাঁচামালের কঠোর সোর্সিংয়ের মাধ্যমে উচ্চতর পণ্যের গুণমান নিশ্চিত করি। আমাদের আন্তর্জাতিক উন্নয়ন কৌশলের সাথে সামঞ্জস্য রেখে, আমরা ক্রমাগত বিশ্বব্যাপী বাজারের প্রবণতা নিরীক্ষণ করি এবং বিশ্বব্যাপী গ্রাহকদের কাছে উচ্চ-মানের "মেড ইন চায়না" পণ্য আনতে ডিজিটাল চ্যানেলগুলিকে লিভারেজ করি।
Ningbo • Fenghua R&D & উৎপাদন বেস
RMB 200 মিলিয়নের মোট বিনিয়োগের সাথে, Kaixin Ultra-Pure Pipe Technology (Ningbo) Co., Ltd. বিশ্ববিদ্যালয় এবং গবেষণা প্রতিষ্ঠানের সহযোগিতায় একটি নতুন উপকরণ পরীক্ষাগার স্থাপন করেছে, একটি আধুনিক উত্পাদন ভিত্তি তৈরি করেছে এবং পরিবর্তিত প্লাস্টিকের জন্য 8টি সম্পূর্ণ স্বয়ংক্রিয় উত্পাদন লাইন এবং 8টি পলিমার সামগ্রীর জন্য ইনস্টল করেছে৷ এই সুবিধাটি নতুন পরিবর্তিত প্লাস্টিক এবং পলিমার সামগ্রীর গবেষণা ও উন্নয়ন, উৎপাদন এবং প্রয়োগের জন্য নিবেদিত। কাইক্সিন গবেষণা ও উন্নয়ন এবং পলিমার ভালভ, পাইপ এবং ফিটিংস তৈরিতে বিশ্বব্যাপী স্বীকৃত নেতা হয়ে ওঠার লক্ষ্যে পণ্যের উদ্ভাবন এবং ব্র্যান্ডের বিকাশকে ক্রমাগতভাবে চালনা করে, বিভিন্ন বিষয়ে শীর্ষ প্রতিভা আকর্ষণ করতে প্রতিশ্রুতিবদ্ধ।
সম্মানের শংসাপত্র
  • honor
  • honor
  • honor
  • honor
  • honor
  • honor
  • honor
  • honor
  • honor
খবর